• Tööd
  • Meist
  • Uudised
  • Artiklid
  • Kontakt

FLUX PROJEKT

  • Tööd
  • Meist
  • Uudised
  • Artiklid
  • Kontakt

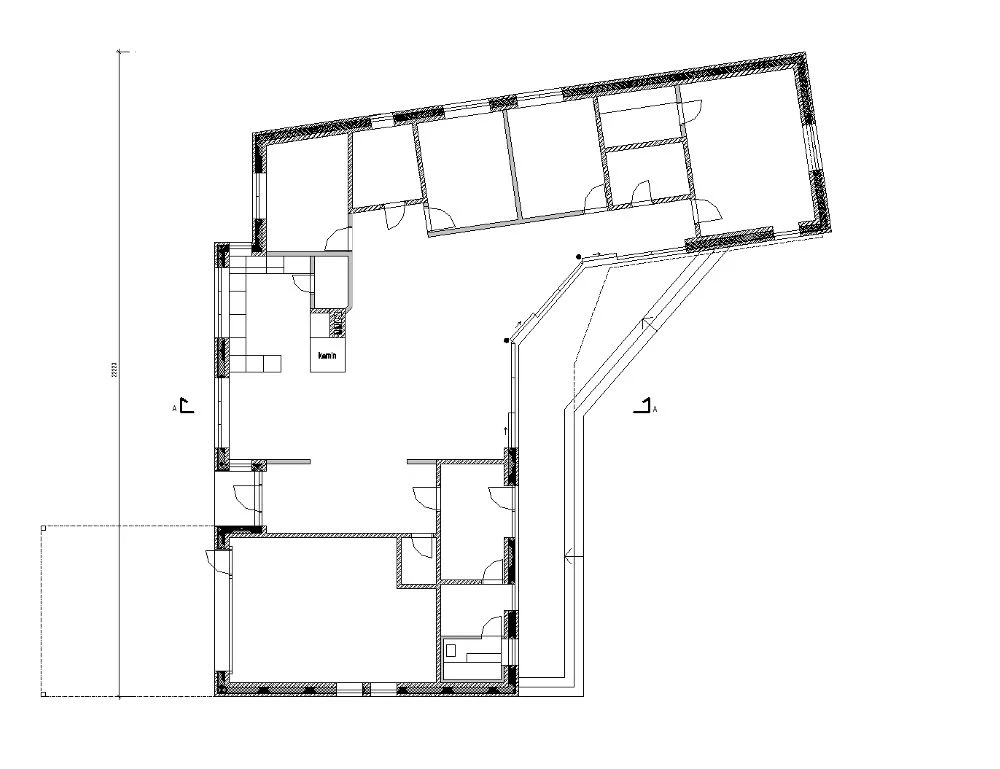
Haavasalu tee eramu- projekt 2016 -

Haavasalu tee, Üksnurme küla, Saku vald
Projekteerija: Flux Projekt OÜ
Autor: Indrek Laos
Brutopind: 270 m²
Projekt: 2016

ARHITEKTUURNE LAHENDUS
Ühekorruseline eramu on projekteeritud arvestades keskkonda ja vaateid ümbritsevale maastikule.
Hoone paikneb lõunapoole laugja nõlvaga krundi põhjaservas. L-kujuline hoonemaht on tänava poolt suletud, üksikute aknaavade ning kuuseornametikaga aktsenteeritud sissepääsuga. Aia poole jäävad terrassile avanevad klaaslükanduste ning osaliselt puitsalužiidega varjestatud klaasipinnad.

27 - 3D View - 3D vaade 4 tn.jpg
01.jpg
02.jpg
27 - 3D View - 3D Vaade 1 tn.jpg
27 - 3D View - 3D vaade 2 hoovist.jpg
27 - 3D View - 3D vaade 3 hoovist.jpg
27 - 3D View - 3D vaade elutoast 1.jpg
27 - 3D View - 3D vaade elutoast 2.jpg
22 - Elevation - 1 Vaade loodest.jpg
22 - Elevation - 2 Vaade kirdest.jpg
22 - Elevation - 3 Vaade kagust.jpg
22 - Elevation - 4 Vaade edelast.jpg