• Tööd
  • Meist
  • Uudised
  • Artiklid
  • Kontakt

FLUX PROJEKT

  • Tööd
  • Meist
  • Uudised
  • Artiklid
  • Kontakt

Kihnu muuseumi rekonstrueerimine- valmis 2010 -

Linaküla, Kihnu vald, Pärnumaa
Projekteerija: AB Studio Paralleel OÜ
Autorid: Indrek Laos, Jaak Huimerind
Sisekujundus: Laika, Belka & Strelka OÜ
Brutopind: 635 m²
Projekt: 2008
Valmis: 2010


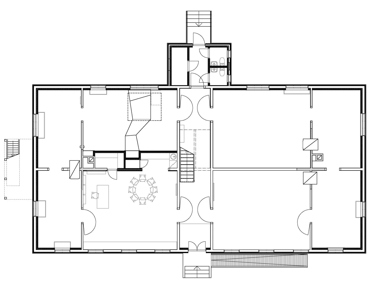
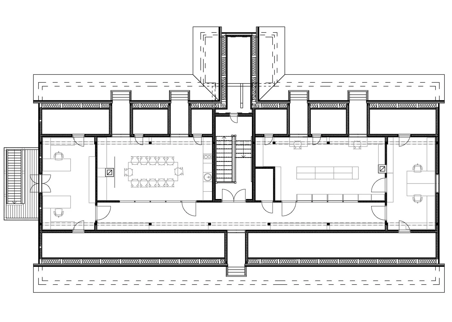
Projekti arhitektuurse üldlahenduse eesmärgiks oli olemasoleva hoone võimalikult ajastukohane ja autentne rekonstrueerimine uueks muuseumi näitustemajaks. Kaasaegne tehnosüsteem ja ruumikasutus on lahendatud märkamatult ning domineerivaks jääb hoone üldilme. Välditud on juurdeehitatavaid osi ja kaasaegseid ja ajaloolisi katuseaknaid. Projekteeritud uued katuseaknad on suured sisselõiked katuse tasapinda, mis on kaetud sindelkatuses paiknevate alumiiniumžalusiidega.

Kihnu muuseum.jpg
Kihnu muuseum eest.jpg
_MG_0186_keskmine.jpg
4 20090620_0155[1].JPG
4 20090620_0152[1].JPG
03.jpg
04.jpg
01.jpg
02.jpg
4 DSC01703[1].JPG