• Tööd
  • Meist
  • Uudised
  • Artiklid
  • Kontakt

FLUX PROJEKT

  • Tööd
  • Meist
  • Uudised
  • Artiklid
  • Kontakt

Kõrre tee eramu- projekt 2016 -

KÕRRE TEE ERAMU REKONSTRUEERIMINE JA LAIENDUS

Kõrre tee, Vääna-Jõesuu küla, Harku Vald
Projekteerija: Flux Projekt OÜ
Autor: Indrek Laos
Brutopind: 286 m²
Projekt: 2016

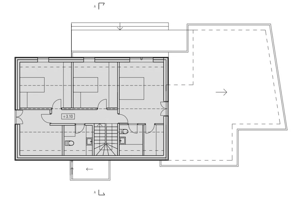
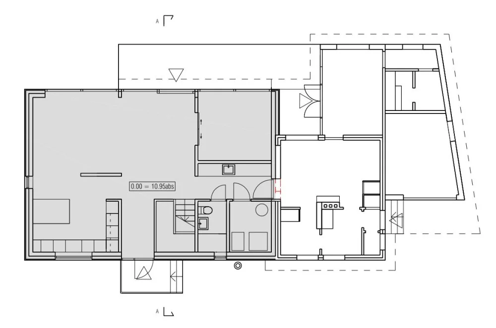
ARHITEKTUURNE LAHENDUS
Kavandatav hoone järgib piirkonna hoonestuslaadi, hoone on kompaktse põhiplaaniga 30 kraadise katuslaega viilkatusega elamu. Hoone on ühekorruseline, juurdeehituse mahus katusekorrusega.
Olemasoleva hoonemahu esimesel korrusel paiknevad köök, elutuba, magamistuba, saun ning garaaž.
Ühekorruseline katusekorrusega juurdeehitus liitub olemasoleva hoonega lõunaküljes.
Juurdeehituse esimesel korrusel paiknevad elukondlikud ruumid: köök, elutuba, kabinet ning wc ja tehniline ruum. Katusekorrusel paiknevad kolm magamistuba ning vannituba. Tubadel on Velux katuseakendega valgustatud kaldused katuslaed, mille suurem osa on kõrgem kui 2,5 m.
Hoone lääne küljel ehitatakse välja õhtupäikese poole avanev puitterrass.

62.jpg
63.jpg
55.jpg
66.jpg
Kõrre tee 02.jpg
plaan1.jpg
plaan2.jpg
vaade1.jpg
vaade2.jpg
lõige1.jpg
sõlm1.jpg
sõlm2.jpg