• Tööd
  • Meist
  • Uudised
  • Artiklid
  • Kontakt

FLUX PROJEKT

  • Tööd
  • Meist
  • Uudised
  • Artiklid
  • Kontakt

Magasini tn elu- ja büroohoone rekonstrueerimine- valmis 2013 -

(Tartu vanalinna muinsuskaitseala nr 27006)
Tartu, Tartu maakond
Projekteerija: Flux Projekt OÜ
Autor: Indrek Laos
Brutopind: 1720 m² 
Projekt: 2012
Valmis: 2013

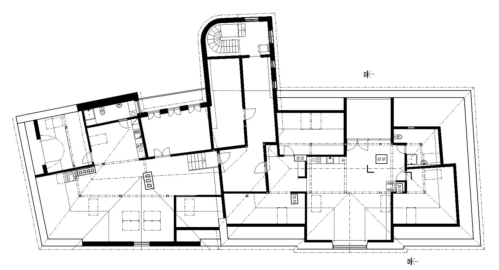
Hoone esimesel korrusel pääsuga tänavalt põhjapoolsest uksest asuvad korterid ja büroopinnad, teisel korrusel pääsuga tänava põhjapoolsest või hooviuksest korterid; keldrikorrusel sissepääsuga hoone lõunaküljelt kohvikuruumid ca 50 külastajale. Katusekorrusele on projektiga ette nähtud kahe katusekorteri väljaehitamine. 
Hoone üldilme ja plaanistruktuur valdavalt säilitatakse, muudatused nähti ette hoone kaasaja nõuetele vastavusse viimiseks ja katusekorruse väljaehitamisega seonduvalt. 
Teisel korrusel taastatakse otsaseina rõdu ning nähakse ette kamin-ahju rajamine. Katusekorrusel on ette nähtud klassitsistliku frontooni taastamine ning „Velux“ tüüpi katuseakaendega soojustatud katuslae ehitus.

01.JPG
02.JPG
03.JPG
04.jpg
05.jpg