• Tööd
  • Meist
  • Uudised
  • Artiklid
  • Kontakt

FLUX PROJEKT

  • Tööd
  • Meist
  • Uudised
  • Artiklid
  • Kontakt

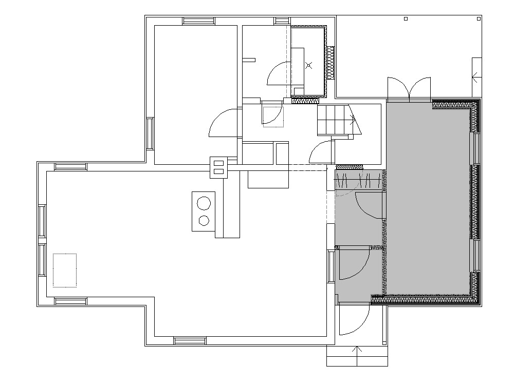
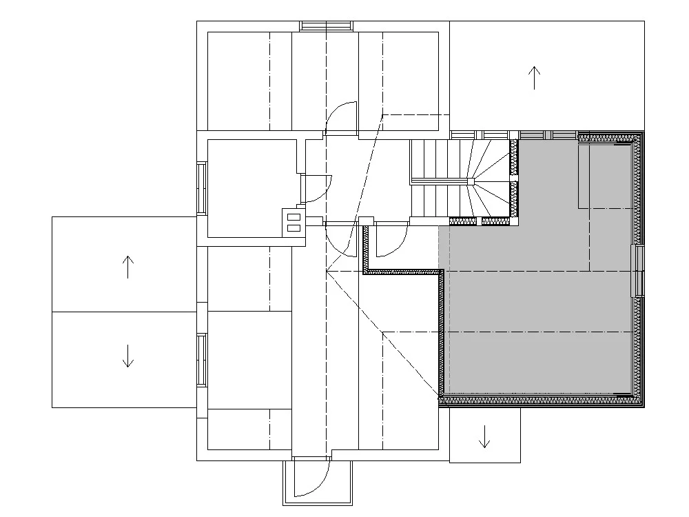
Nõmme-Kase tn eramu- projekt 2014 -

Nõmme LO, Tallinn
Projekteerija: Flux Projekt OÜ
Autor: Indrek Laos 
Brutopind: 178 m² 
Projekt: 2014

Rekonstrueeritav hoone on traditsioonilise puitvoodri ja kõrge viilkatusega elamu. Juurdeehitusena kavandatavad mahud on sobitatud olemasolevate mahtude ja arhitektuurse välisilmega. Kavandatud lahendus on projekteeritud olemasolevale kehandile harmoonilise jätkuna. Jälgitud on hoonestuse ühtsust ning naaberehitistega ühilduvat materjalikäsitlust, mis tagab piirkonna ühtlase ja omanäolise väljakujunenud miljöö säilimise.

01.jpg
03.jpg
04.jpg
05.jpg