• Tööd
  • Meist
  • Uudised
  • Artiklid
  • Kontakt

FLUX PROJEKT

  • Tööd
  • Meist
  • Uudised
  • Artiklid
  • Kontakt

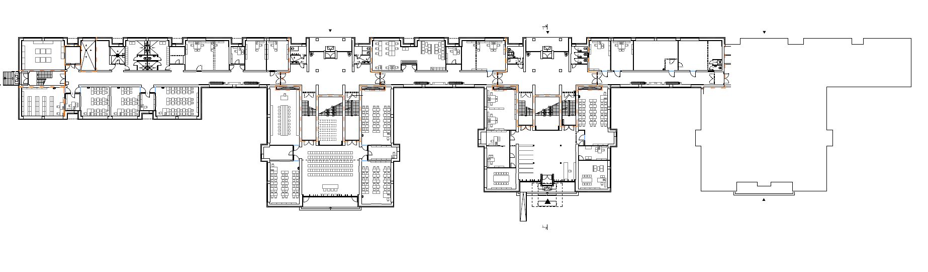
Olustvere TMK õppehoone rekonstrueerimine- valmis 2013 -

Olustvere, Viljandi maakond
Arh. osa projekteerija: Arhitekt Indrek Laos
Autor: Indrek Laos
Rek. netopind: 4532 m² 
Projekt: 2012
Valmis: 2013

Olustvere Teenindus- ja Maamajanduskooli õppehoone asub ajaloolise Olustvere mõisaansambli muinsuskaitsevööndis. Miljööd kujundav hooneterikas mõisakompleks on kujunenud peamiselt 19/20 sajandil. 
Kaasaegsetele soojapidavuse nõuetele mittevastav õppehoone nähti projektiga ette soojustada ja viimistleda „Raketerm“ süsteemis fassaadiplaatidega. Kavandati ka amortiseerunud puidust avatäidete asendamine uute soojapidavate puitakende ja külmakatkestusega alumiiniumprofiilidest vitriinakendega. Uus välisviimistluse lahendus arvestab õppehoone asukohaga miljööväärtuslikus keskkonnas ning sobivust ajaloolise mõisaansambliga.

95.jpg
WP_20130519_053.jpg
WP_20130519_051.jpg
WP_20130409_008.jpg
Olustvere.jpg
WP_20130409_005.jpg
01.jpg
04.jpg
02.jpg
03.jpg