• Tööd
  • Meist
  • Uudised
  • Artiklid
  • Kontakt

FLUX PROJEKT

  • Tööd
  • Meist
  • Uudised
  • Artiklid
  • Kontakt

Partsi mõisa tuuleveski- valmis osaliselt 2013 -

PARTSI MÕISA TUULEVESKI RESTAUREERIMINE JA REKONSTRUEERIMINE VESKIMUUSEUMIKS

(Arhitektuurimälestis nr 23606)
Partsi küla, Pühalepa vald, Hiiumaa
Projekteerija: Arhitekt Indrek Laos
Autor: Indrek Laos
Brutopind: 290 m²
Projekt: 2007
Valmis osaliselt: 2013

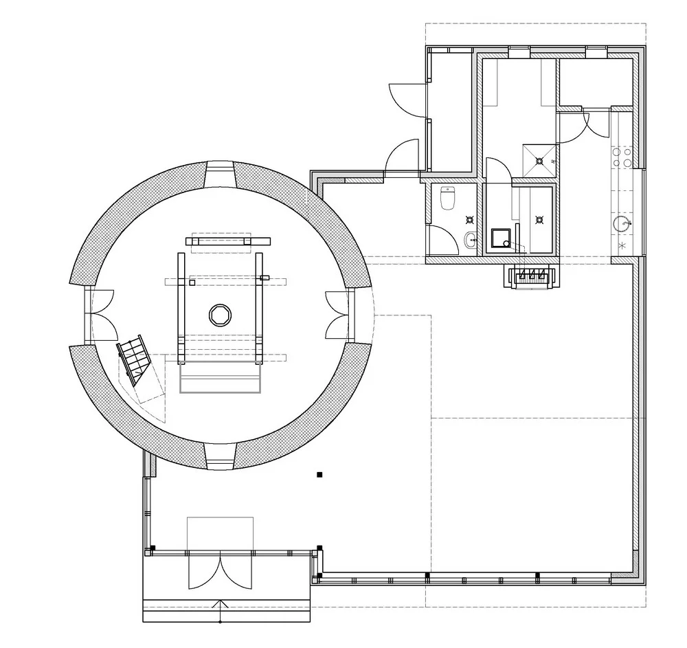
Projekti eesmärk on ajaloolise Partsi mõisa tuuleveski olemasoleva veskikehandi restaureerimine, selle mahus säilinud algupärase tehnoloogia eksponeerimine ning hoone rekonstrueerimine Veskimuuseumiks. Hävinud tuuliku pea, 6-tiivaline tiivik ja 1. korruse galerii on kavas taastada fotorekonstruktsioonide põhjal. Lokomotiiviaegne sisseseade: kivitõrred ja kolud korrastatakse ja eksponeeritakse. Veskiga seotud detaile ja illustreerivat materjali eksponeeritakse veskikoja ja kivilae paeseintel.
Kavandatud juurdeehitus on projekteeritud kunagise abihoone säilinud vundamendiosade kontuurile. Juurdeehituse mahtu on kavandatud suurem kogunemissaal ja muuseumit teenindavad abiruumid.

partsi_tuulik.gif
DSC_4009.jpg
DSC_3989.jpg
25062011301.jpg
WP_20130817_024.jpg
PartsiTUULIK PP 201207 M100 A3LAND (a).jpg
PartsiTUULIK PP 201207 M100 A3LAND (b).jpg
PartsiTUULIK PP 201207 M100 A3LAND (c).jpg