• Tööd
  • Meist
  • Uudised
  • Artiklid
  • Kontakt

FLUX PROJEKT

  • Tööd
  • Meist
  • Uudised
  • Artiklid
  • Kontakt

Pivarootsi karjakastell- projekt 2016 -

ENDISE PIVAROOTSI MÕISA KARJAKASTELLI REKONSTRUEERIMINE HOTELLIKS

Pivarootsi küla, Hanila vald
Projekteerija: Flux Projekt OÜ
Autor: Indrek Laos
Brutopind: 2197 m²
Projekt: 2016

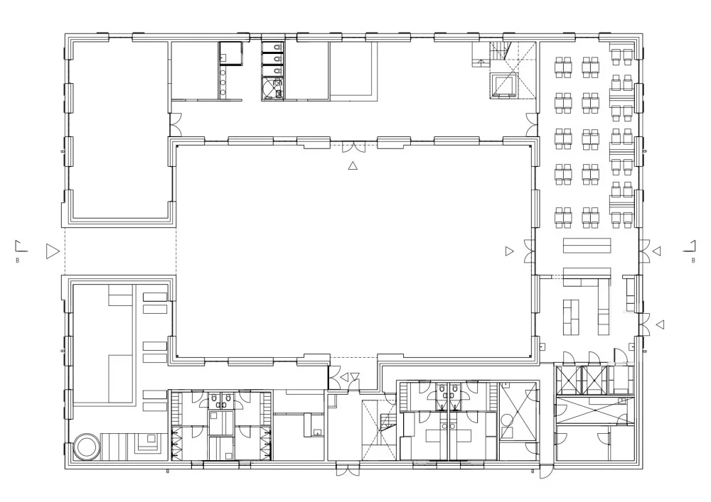
Rekonstrueeritav hoone järgib oma mahult ajaloolise karjakastelli geomeetriat. Hoone on ühekorruseilne, esimese korruse ulatuses graniit- ja paekivi müüridega ning kõrge kelpkatusega. Ansamblilisuse tagamiseks ajaloolise mõisakompleksi ülejäänud hoonestusega on katusekattena ette nähtud keraamilise kivikatuse paigaldamine.
Hoone taastatakse algses kastelli mahus järgides ajaloolist katuse kuju ja hoone üldist kõrgust. Hotelli fuajee, restoran, saunakeskus ja teenindava personali ruumid paiknevad hoone esimesel korrusel ümber suletud siseõue. Tehniline ruum koos kilbiruumiga on kavandatud hoone põhjatiivas.
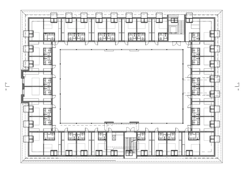
Eraldi duširuumidega numbritoad paiknevad katusekorrusel. Sisehoovi poolne räästaalune ruum on kujundatud avatud galeriina kust avanevad vaated neljast küljest piiratud siseõuele.

Pivarootsi (1).jpg
pano1-360.jpg
pano2-360.jpg
pano3-360.jpg
Pivarootsi (2).jpg
Pivarootsi (3).jpg
Pivarootsi (4).jpg
plaan1.jpg
plaan2.jpg
l6ige.jpg