• Tööd
  • Meist
  • Uudised
  • Artiklid
  • Kontakt

FLUX PROJEKT

  • Tööd
  • Meist
  • Uudised
  • Artiklid
  • Kontakt

Raudtee tn eramu - valmis 2019 -

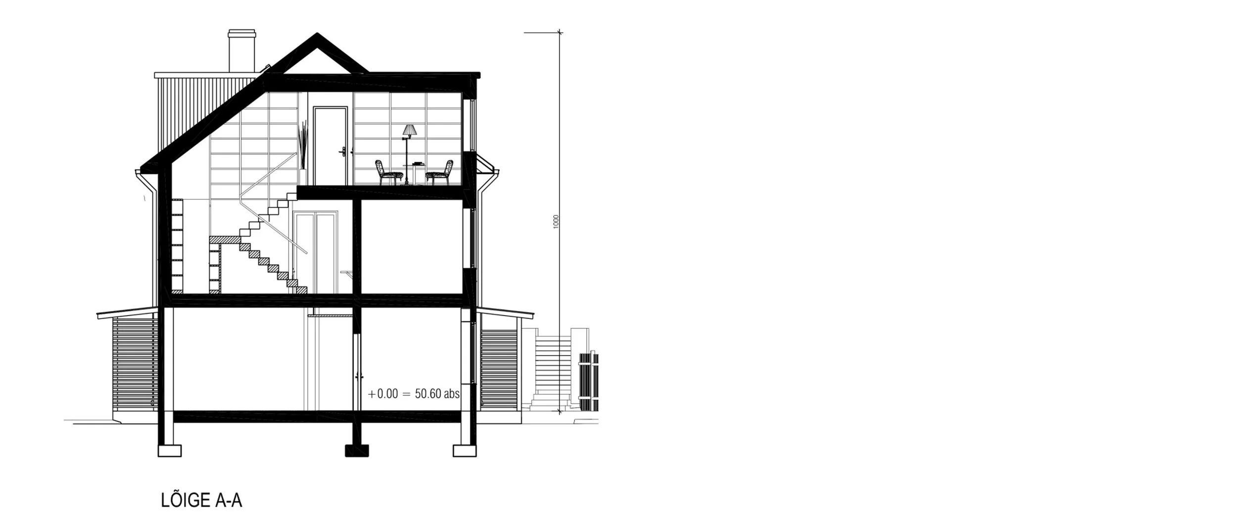
RAUDTEE TN ERAMU

Raudtee tn, Nõmme lo, Tallinn
Projekteerija: Flux Projekt OÜ
Autor: Indrek Laos
Netopind: 365 m²
Projekt: 2018; Valmis: 2019

ARHITEKTUURNE LAHENDUS
Hoone paikneb Nõmme linnaosa Rahumäe asumis Raudtee tn äärsel looduslikul nõlval. Hoonest Raudtee tänava poolne ala on kujundatud terrassidena atmeliselt laskuva eesõuena kus paiknevad üksikud viljapuud, hoone vahetu ümbrus on privaatne iluaed.
Kinnistu algne hoonestus on amortiseerunud, selle asemele rajataske samas maastaabis kahe korruseline kivist kandekonstruktsiooni ja katusekorrusega elamu. Säilitatakse hoone jagunemine kaheks korteriks, katusekorrus ehitatakse välja muusikastuudiona, kahekorruselise põhimahuga liitub lõunaküljel eraldi sissepääsuga ateljee.

01.JPG
02.jpg
03.jpg
03.jpg
05a.jpg
06a.jpg
07a.jpg