• Tööd
  • Meist
  • Uudised
  • Artiklid
  • Kontakt

FLUX PROJEKT

  • Tööd
  • Meist
  • Uudised
  • Artiklid
  • Kontakt

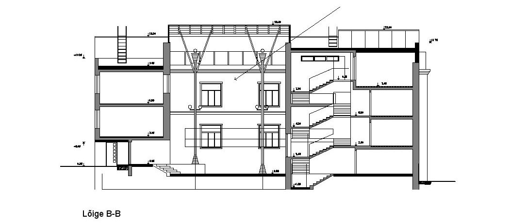
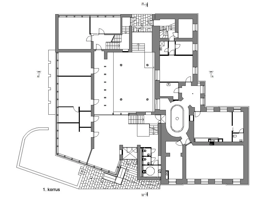
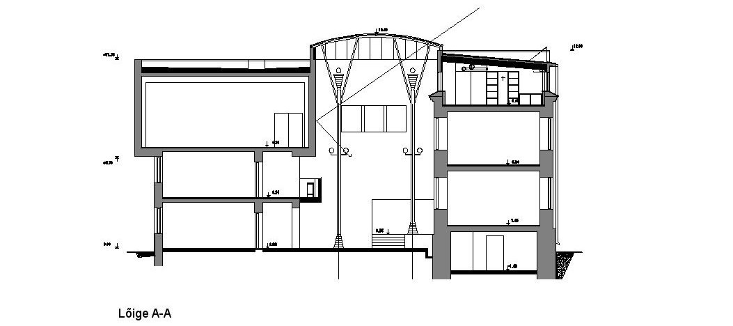
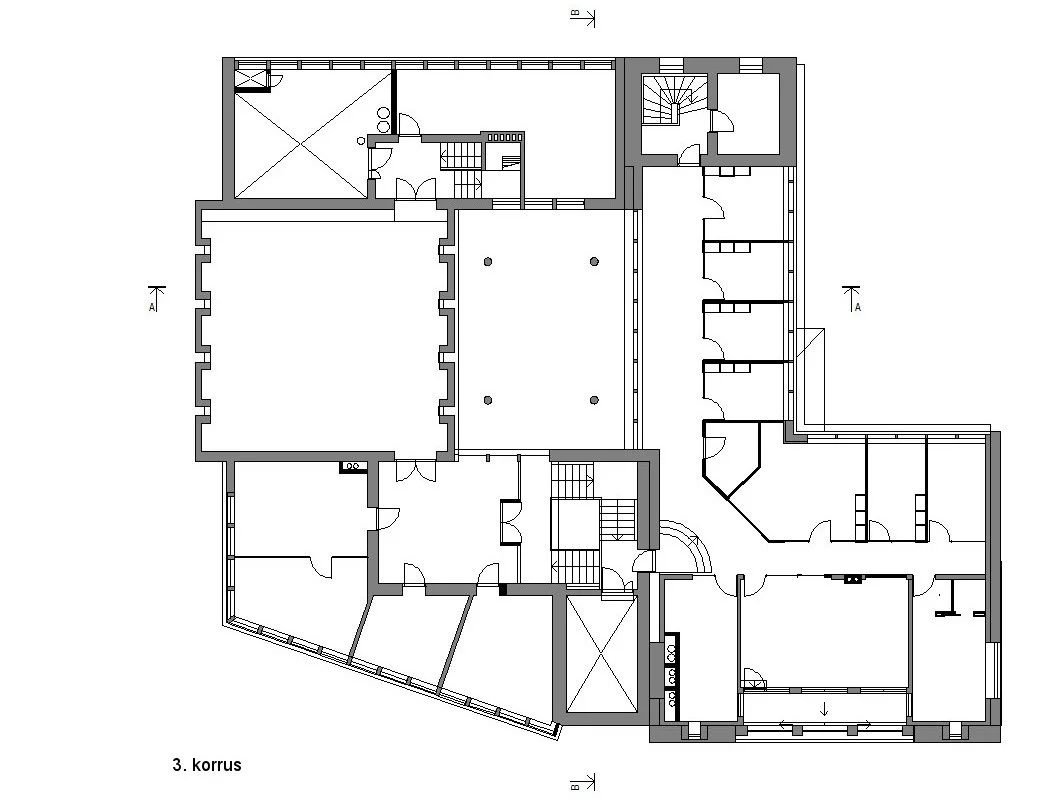
RMK administratiivhoone rekonstrueerimine- valmis 2013

(Tallinna vanalinna muinsuskaitseala nr 2589)
Toompuiestee 24, Tallinn
Peaprojekteerija: Esplan OÜ
Arh. osa projekteerija: Arhitekt Indrek Laos
Autor, vastutav spetsialist: Indrek Laos
Brutopind: 2635 m²
Projekt: 2012
Valmis: 2013

Rekonstrueeritav Riigimetsa Majandamise Keskuse administratiivhoone paikneb UNESCO maailmapärandi nimekirja kuuluva Tallinna vanalinna muinsuskaitse alal ajaloolises bastionite vööndis. Krundil paikneb kolmekorruseline historitsistlik telliskivifassaadiga hoone funktsionalistlikus stiilis juurdeehitusega.
Tingituna maja asukohast vanalinna muinsuskaitsealal on fassaadide rekonstrueerimisel arvestatud muinsuskaitse nõuetest tulenevate tingimuste ja piirangutega.

2013 valis 1.jpg
RMK sisevaade.jpg
23.jpg
24.jpg
25.jpg
26.jpg
27.jpg
28.jpg
30.jpg
29.jpg
solm01.jpg
solm02.jpg