• Tööd
  • Meist
  • Uudised
  • Artiklid
  • Kontakt

FLUX PROJEKT

  • Tööd
  • Meist
  • Uudised
  • Artiklid
  • Kontakt

Tipu Looduskooli hoone rekonstrueerimine- projekt 2012 -

Tipu kool, Tipu küla, Kõpu vald, Viljandi maakond
Projekteerija: Flux Pojekt OÜ
Autor: Indrek Laos
Sisekujundus: Laika, Belka & Strekla OÜ
Brutopind: Koolimaja 639,0 m², saun-katlamaja 193,7 m²
Projekt: 2012


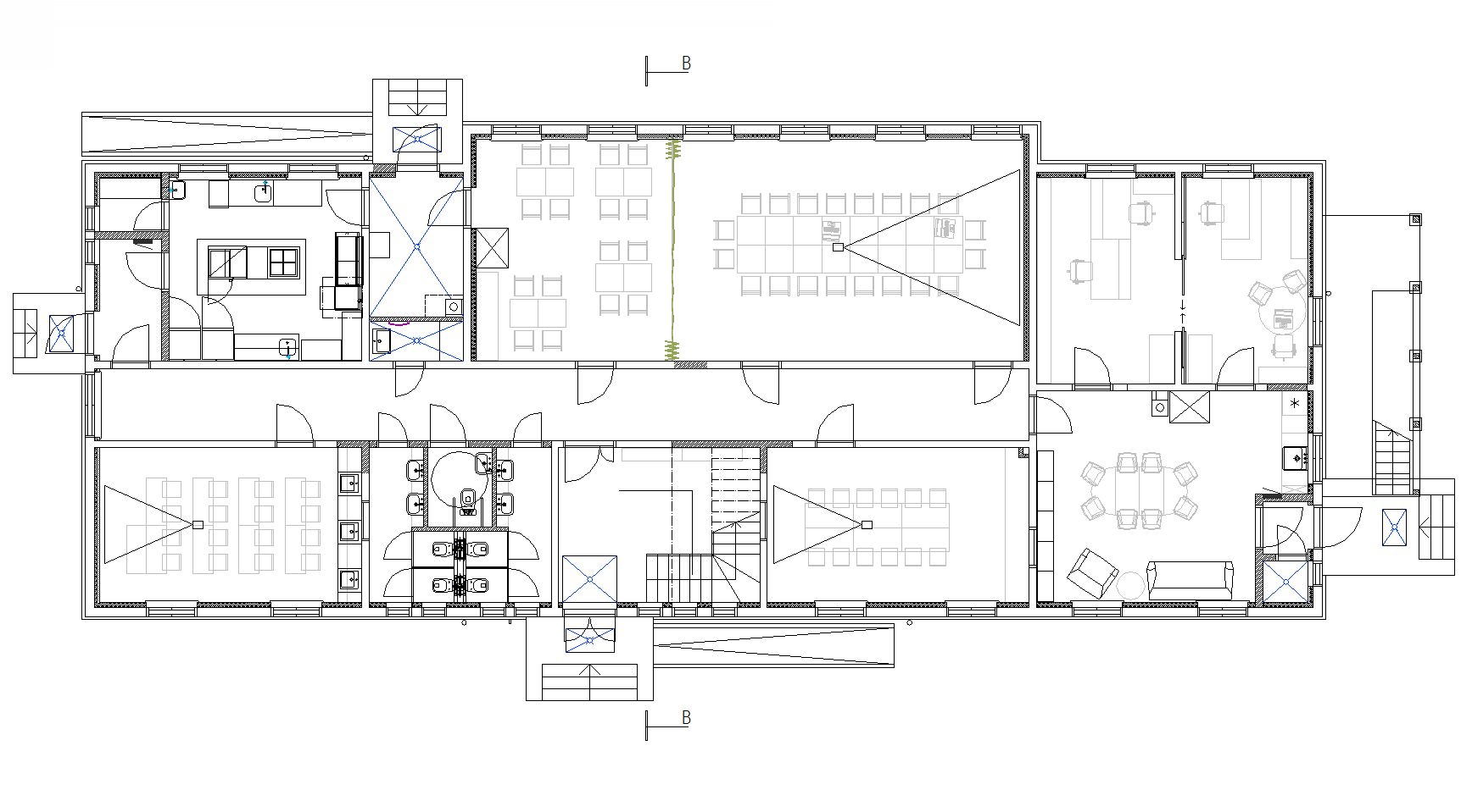
Projekt on koostatud Tipu ajaloolise koolimaja rekonstrueerimiseks ja saun-katlamaja ehitamiseks. Looduskooli hoonena kasutusele võetav endine koolimaja on ühekorruseline katusekorrusega puithoone. Hoone on püstitatud taaskasutuse põhimõttel varutud materjalidest 1932 a. Ajalooline peahoone rekonstrueeritakse traditsionalistlikus vormikeeles.
Hoone esimesel korrusel paiknevad valdavalt õppe- ja koolitusotstarbelised ühiskondlikud ruumid. Peamised suuremad kogunemisruumid paiknevad kogu hoonet läbiva keskse koridori servas. Sansõlm ja pääs katusekorrusele on lahendatud peasissepääsu juurde.
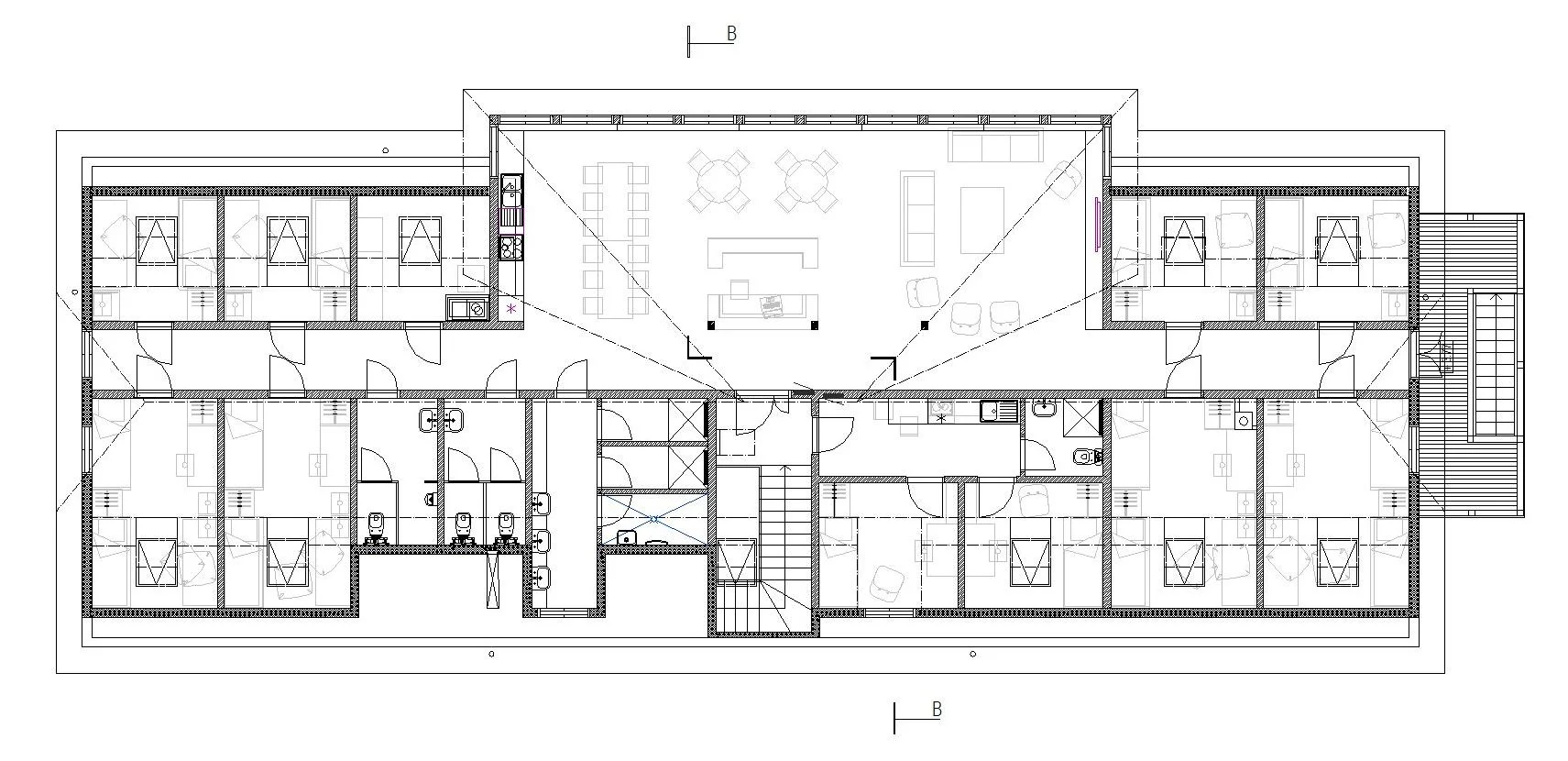
Katusekorrusele on kavandatud 12 voodikohaga hostel-tüüpi majutusasutus. Nõuetekohase juurdepääsu tagamiseks on ette nähtud olemasoleva trepikoja ümberehitus ja laiendamine. Suurem ümberehitus on seotud lõunaküljes eenduva veranda tüüpi katusevintskapi väljaehitamise ning hoone otsaseina evakuatsioonitrepi rajamisega.
Küüni-tüüpi viilkatusega saun/katlamaja hoonemaht on lahendatud keskkonda sulanduvalt traditsioonilise materjalikasutusega kaasaegselt minimalistlikus vormikeeles. Hoonel on keskkonnaga harmoneeruv vertikaalne ülekattega laudvooder ning tõrvatud sindelkatus. Üldiselt suletud maht avaneb tiigi poole klaaspakettidest vitriinaknaga.

1.jpg
2.jpg
3.jpg
4.jpg
5.jpg
6.jpg
01.jpg
02.jpg
03.jpg
11.jpg
10.jpg
12.jpg
13.jpg