• Tööd
  • Meist
  • Uudised
  • Artiklid
  • Kontakt

FLUX PROJEKT

  • Tööd
  • Meist
  • Uudised
  • Artiklid
  • Kontakt

Põhja-Eesti Pimedate Ühingu hoone rekonstrueerimine- projekt 2012 -

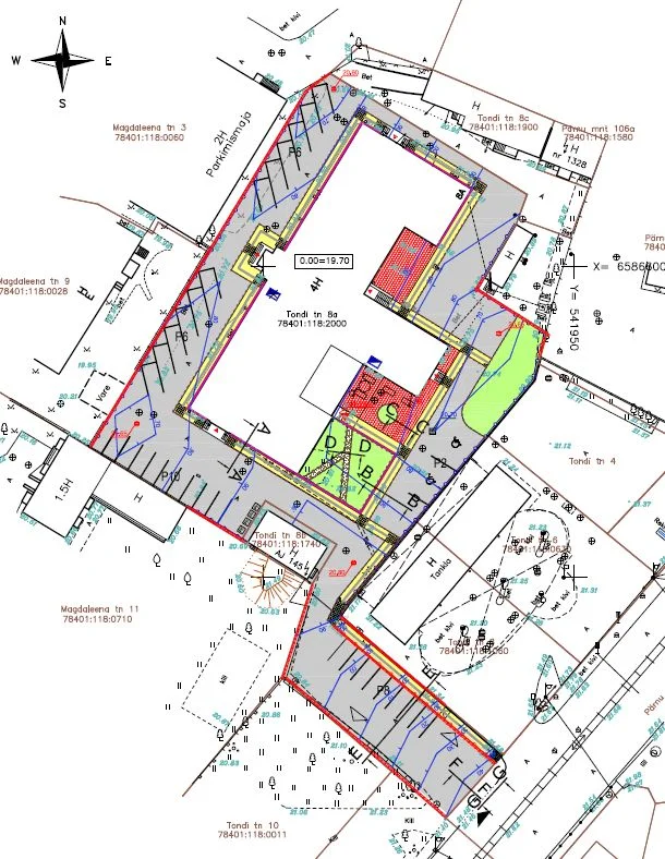
Tondi tn 8a, Tallinn, Harjumaa
Projekteerija: Esplan OÜ
Autor: Indrek Laos
Brutopindala: 3776 m² 
Projekt: 2012

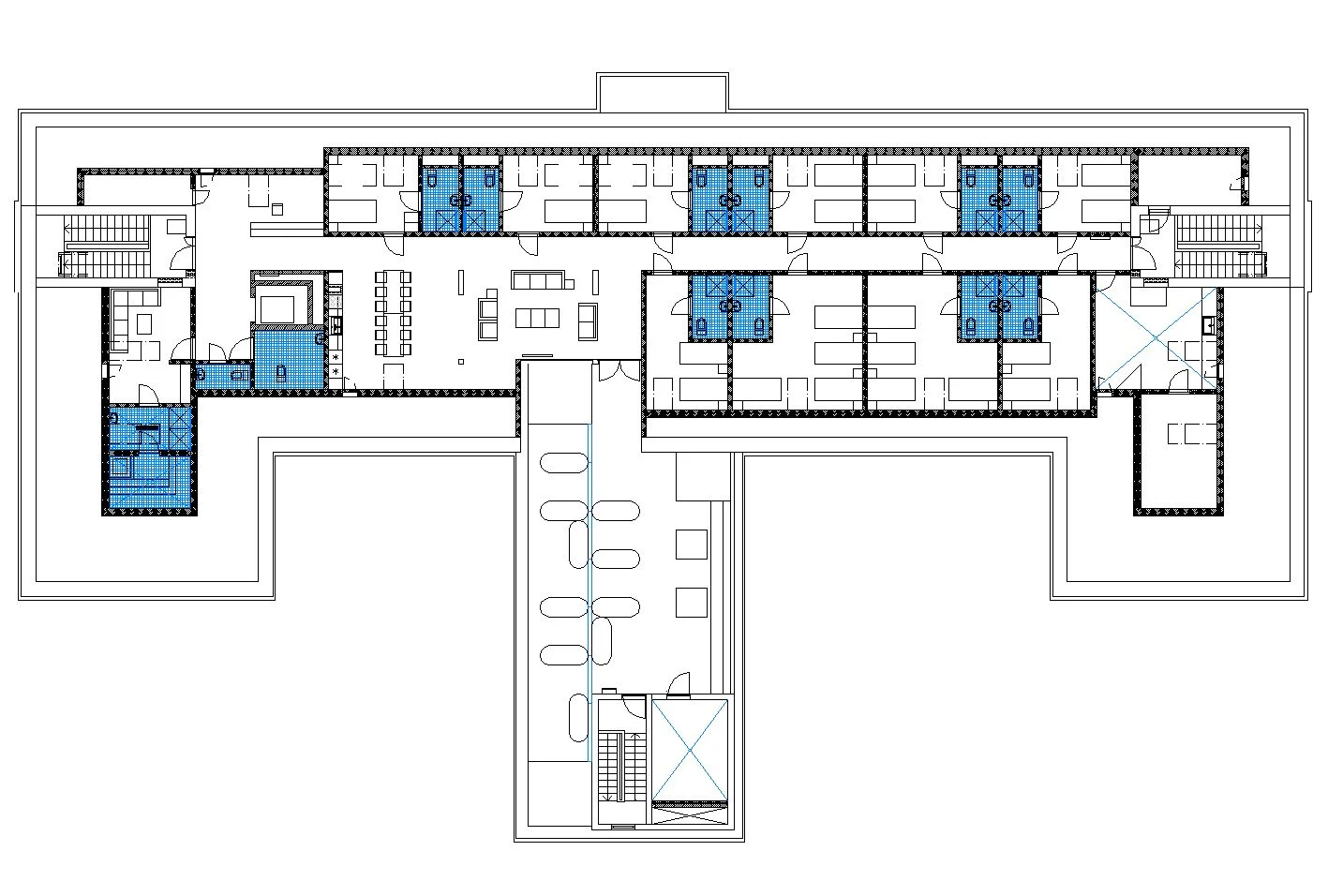
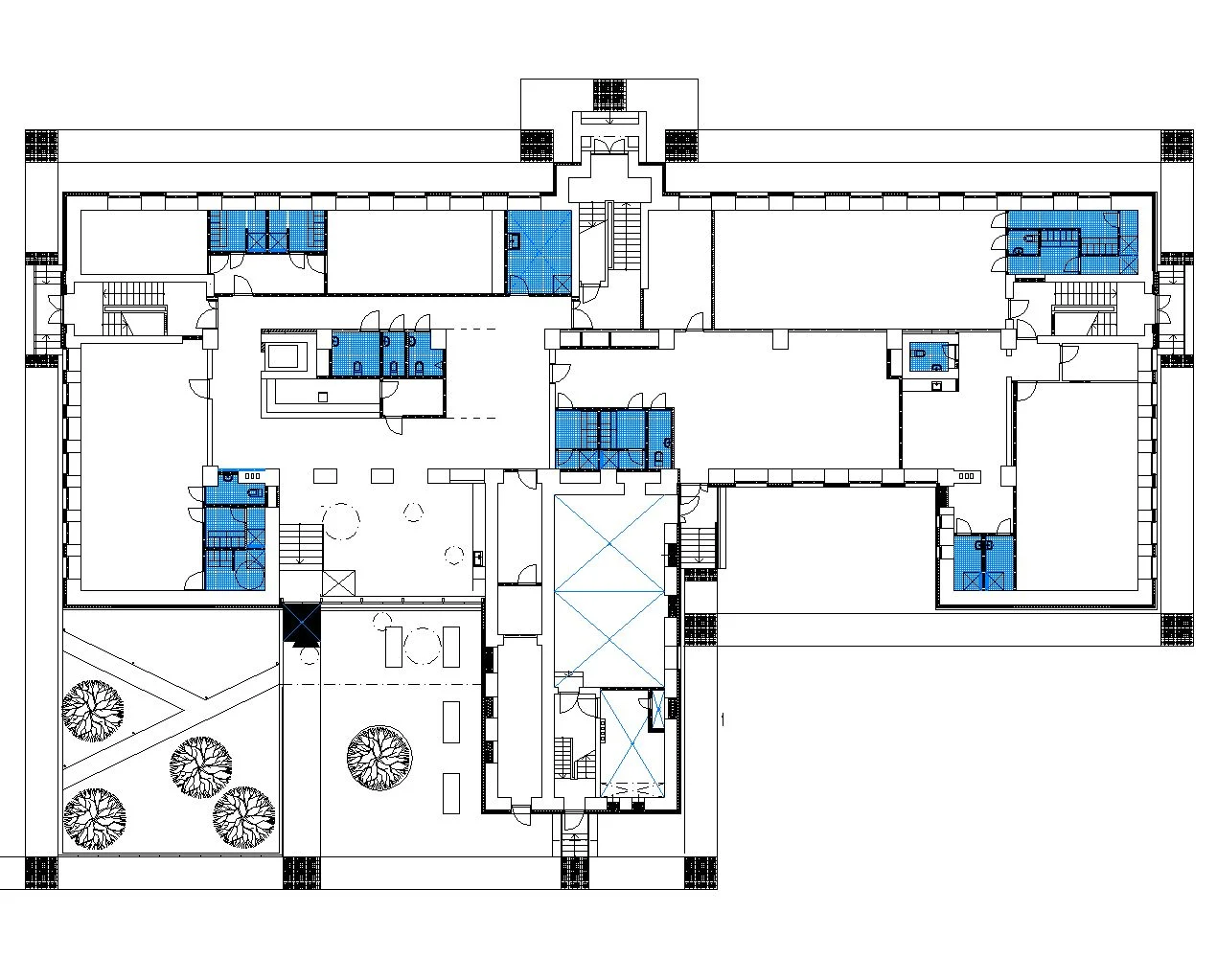
Rekonstrueerimisega nähakse ette piirdekonstruktsioonide soojustamine, tagatakse hoones nõuetekohane sisekliima ja energiasääst küttekuludelt. Esimesele korrusele on projekteeritud uus esinduslik sissepääs ja fuajee.
Hoone ümbrus korrastatakse, rajatakse kõnniteed, asfaltkattega parklad, haljastus ning konteinerhaljastusega katuseterrass.
Hoone projekteerimisel on erilist tähelepanu pööratud kõigile ligipääsetavuse põhimõtetele vastavalt Majandus- ja kommunikatsiooniministeeriumi määrusele nr 14, 28.11.2002 „Nõuded liikumis-, nägemis- ja kuulmispuudega inimeste liikumisvõimaluste tagamiseks üldkasutatavates ehitistes“.
Kõik ruumid vastavad kõigile ligipääsetavuse nõuetele.
Liikumisteedel valge kepi abil orienteerumise hõlbustamiseks on ette nähtud erineva viimistlusmaterjaliga tähistatud alad ja maamärgid. Orienteerumist hõlbustavad kuulmis- ja kompimismeelele orienteeritud pindade kasutamine. Suurest valguserinevusest tuleneva nägemistundlikkuse ja  pimestamise vältimiseks on kavandatud olemasolevatele akendele otsest päikesevagust hajutava prinditud joonmustriga tuuleklaasi paigaldamine. 
Värvid on lahendatud kontrastsuse printsiibil. Tumeduserinevuse eesmärgiks on oluliste ehitisosade, tarindite ja detailide esile tõstmine taustast. 
Ruumi tajumist on toetatud ka erinevate kuulmisaistingutega. Kõne kuulmise hõlbustamiseks on vähendatud pikka järelkõla akustiliste paneelide ja neelduvate materjalidega. 
Pideva helitaustaga on märgistatud peasissepääs, häälinfoga on varustatud lift. Põhilised viidad esitatakse punktkirjas loetavatena.

PPY_2012-06-29_tulevik.rvt_2012-Oct-11_09-32-55AM-000_vaade_sissepääsu_poolt.jpg
01.jpg
02.jpg
03.jpg
04.jpg
05.jpg
06.jpg
PPY_2012-06-29_tulevik.rvt_2012-Oct-11_09-37-53AM-000_vaade_10_otse_1a.jpg
PPY_2012-06-29_tulevik.rvt_2012-Oct-11_09-38-20AM-000_vaade_11_otse_2a.jpg
PPY_2012-06-29_tulevik.rvt_2012-Oct-11_09-17-29AM-000_vaade_12_otse_3a.jpg
PPY_2012-06-29_tulevik.rvt_2012-Oct-11_09-17-29AM-000_vaade_13_otse_4a.jpg
PPY_2012-06-29_tulevik.rvt_2012-Oct-11_09-35-13AM-000_vaade_07.jpg
PPY_2012-06-29_tulevik.rvt_2012-Oct-11_09-32-34AM-000_vaade_tagant_flamenco.jpg
PPY_2012-06-29_tulevik.rvt_2012-Oct-11_09-36-19AM-000_vaade_08.jpg
PPY_2012-06-29_tulevik.rvt_2012-Oct-11_10-40-45AM-000_sissepääsu_katus_ülevalt.jpg
PPY_2012-06-29_tulevik.rvt_2012-Oct-11_09-36-45AM-000_vaade_09a.jpg
PPY_2012-06-29_tulevik.rvt_2012-Oct-11_10-40-24AM-000_sissepääs_taevast.jpg
PPY_2012-06-29_tulevik.rvt_2012-Oct-11_09-34-09AM-000_vaade_aednikumajale.png
PPY_2012-06-29_tulevik.rvt_2012-Oct-11_10-41-44AM-000_vaade_01a.jpg
PPY_2012-06-29_tulevik.rvt_2012-Oct-11_10-42-37AM-000_vaade_02a.jpg
PPY_2012-06-29_tulevik.rvt_2012-Oct-11_12-17-45PM-000_vaade_17a.jpg
PPY_2012-06-29_tulevik.rvt_2012-Oct-11_12-18-05PM-000_vaade_18.jpg
PPY_2012-06-29_tulevik.rvt_2012-Oct-11_01-05-18PM-000_vaade_15.jpg
PPY_2012-06-29_tulevik.rvt_2012-Oct-11_01-49-28PM-000_vaade_20a.jpg