• Tööd
  • Meist
  • Uudised
  • Artiklid
  • Kontakt

FLUX PROJEKT

  • Tööd
  • Meist
  • Uudised
  • Artiklid
  • Kontakt

Vana-Vigala TTK ühiselamu rekonstrueerimine- valmis 2013 -

Vana-Vigala küla, Vigala vald, Raplamaa
Arh. osa projekteerija: Arhitekt Indrek Laos
Autor: Indrek Laos
Brutopindala: 6091 m² 
Projekt: 2011
Valmis: 2013

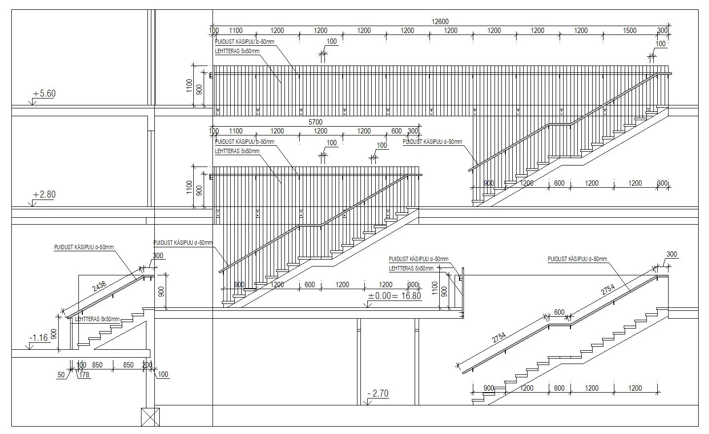
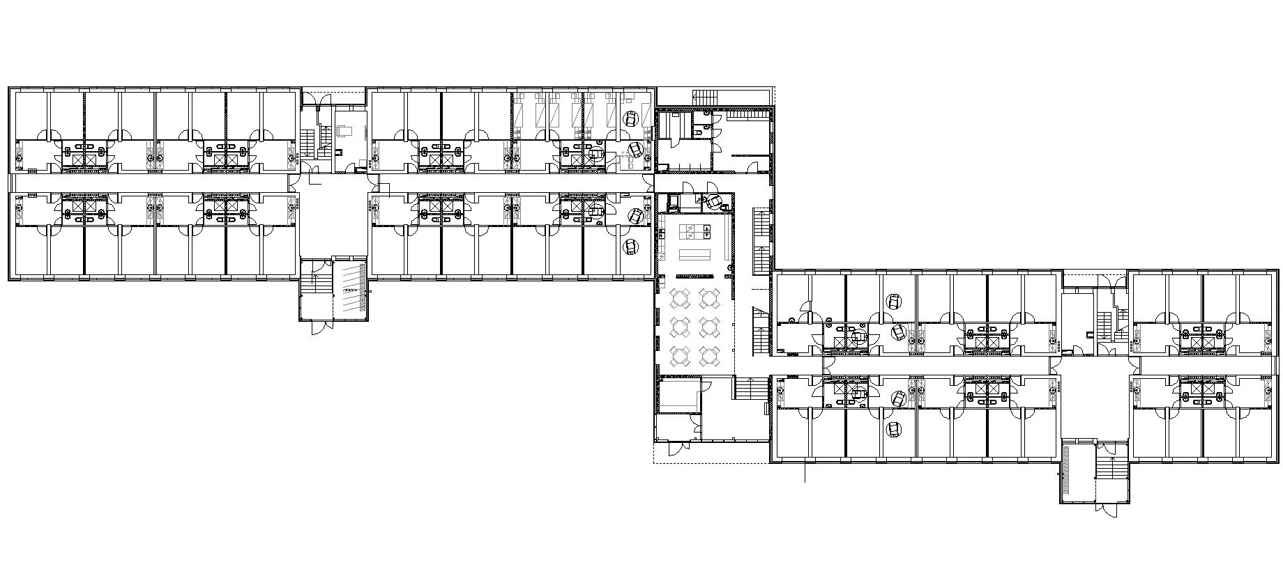
Ühiselamu elamisplokkides on kavandatud planeeringulisi muudatusi ning kõigi kommunikatsioonide kaasajastamine. Mõlemale hoonetiivale kavandatakse uusehitusena eraldi sissepääsud.
Olemasolevad 10 kohalised ühe san. sõlme ümber koondatud elamisühikud jagatakse kahes väiksemaks õpilaskorteriks.  Kavandatavad õpilaskorterid koosnevad kahest 11m² 2-inimese toast ühise wc, duširuumi ning köögiga.
Ühiskasutusega ruumid on kavandatud kahe tiibhoone vahele uusehitusena rajatavasse 3-korruselisesse hooneplokki Väga halvas tehnilises seisukorras keskmine vaheplokk lammutatakse. Uus ühendusplokk projekteeritakse multifunktsionaalse vabaajaveetmise keskusena.
Liikumispuuetega õpilaste pääs on tagatud kuni esimese korruse tasandini, nende jaoks on kavandatud 2 tuba mõlema hoonetiiva peasissepääsu poolsetes otstes.
Ühiselamu elamutiivad on lahendatud ühtlases kollases toonis, keskmine hobiruumide korpus moodustab kontrastsema aktsendi, rõhutades selle hooneosa aktiivsemat funktsiooni.

SAM_7574.JPG
WP_20130519_009.jpg
SAM_7577.JPG
WP_20130519_010.jpg
WP_20130519_020.jpg
WP_20130519_028.jpg
01.jpg
03.jpg
04.jpg
05.jpg
06.jpg
02.jpg